hana@hanadoor.com / hana90@hanmail.net
031-677-5114
처음으로
|
즐겨찾기
|
로그인
|
사이트맵
|
고객센터
|
|
회사소개
인사말
회사연혁
CEO인사말
경영이념
찾아오시는길
제품소개
Dock System Solution
Overhead Door System
Overhead Door
High Speed Door
Dock Leveler
Dock Seal
Dock Shelter
L-PAD Dock Shelter
Air Shelter
AL. High Speed Roll-up Door
Compact Door
온라인견적문의
사이버홍보실
CI
인증서&특허
표창
주요 시공현장
홍보자료
커뮤니티
공지사항
FAQ
E-카달로그
고객센터
SiteMap
Dock System Solution
Overhead Door System
Overhead Door
High Speed Door
Dock Leveler
Dock Seal
Dock Shelter
L-PAD Dock Shelter
Air Shelter
AL. High Speed Roll-up Door
Compact Door
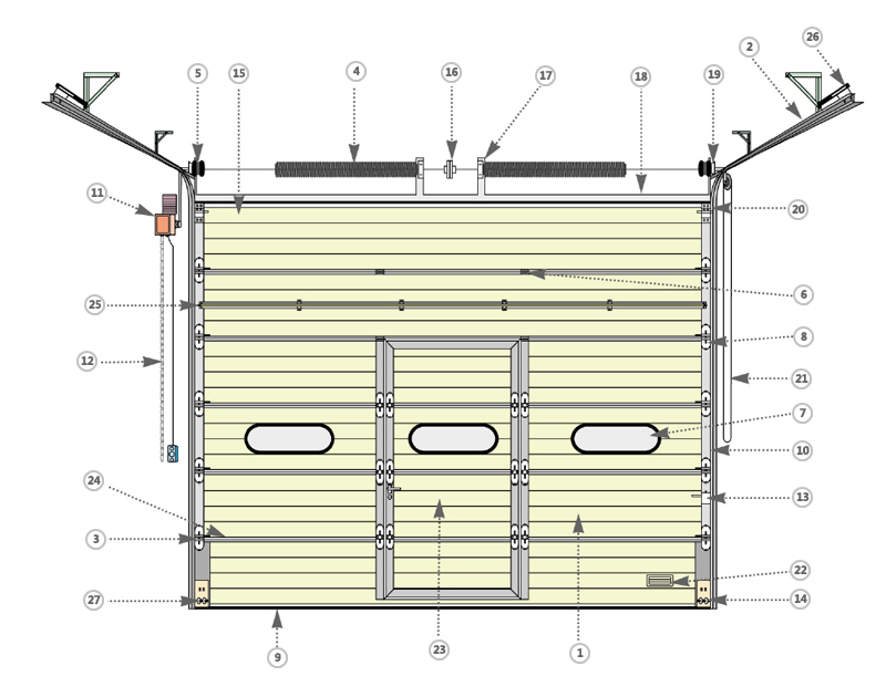
(주)하나기공은 Door의 판넬 및 구성부품, Moter Operator와 Control 일체를 자체기술로 개발, 제작하고 있으며 방대한 물량의 부품이 항상 Stock 되고 있어 필요한 부품의 적기 공급으로 최단시간의 납기와 A/S 체제를 완비하고 있습니다.
도어판넬
트랙
롤러
토션스프링
케이블드럼
센터힌지
투시창
싸이드힌지
싸이드힌지
싸이드힌지
모터 오퍼레이터
수동체인
잠금장치(Lock)
버팀힌지
Height Adjustment
커플링
사프트 브라켓트
탑씰
헤드플레이트
탑힌지
체인호이스트
Handle/Foot plate
패스도어
Section Seal
판넬보강제
Door Stopper
추락방지장치
상세설명
도어판넬
단열,싱글, 투명, 흡음, 판넬 등 다양한 판넬의 적용이 자유롭습니다.
트랙
도어의 규격과 중량에 따라 2″
혹은 3″ 폭의 트랙을 선택할 수 있습니다.
롤러
트랙 종류에 따라 2″ 혹은 3″ 롤러가 채택되며 Steel Tire 혹은 Nylon Tire 등 다양한 소재가 준비되어 있습니다.
토션스프링
도어의 규격과 중량에 따라 컴퓨터 설계로 제작되며 스프링의 카운터 바란스 작용으로 도어를 부드럽고 신속하게 개폐합니다.
케이블드럼
도어의 중량과 높이에 따라 케이블 드럼이 선택됩니다. 버팀힌지에 연결한 케이블을 드럼에 감아 도어를 상/하로 작동하게 합니다.
중간힌지
도어판넬을 연결하고 굴곡작용을 하여 도어가 수직, 수평트랙을 따라 이동시 부드럽게 작동하게 합니다.
투시창
도어판넬에 부착하여 투시, 채광을 가능케하며 투명 아크릴과 Rubber Frame으로 구성되어 있습니다.
싸이드힌지
도어판넬 좌/우측 엔드켑에 부착되어 판넬과 판넬을 연결하며 롤러브리켓과 롤러가 장착되어 도어 운행을 도와주는 역할을 합니다.
버팀씰
도어하단 EPDM RUBBER재의 버팀씰이 부착되어 도어와 바닥의 GAP을 차단하고 완충역할을 합니다. 내부에 Air Hose를 삽입하여 Safety Edge 역할도 합니다.
사이드씰
도어 양 Side에 부착되어 도어 측면부와 벽체를 차단하여 기밀성을 높입니다.
모터오퍼레이터
3상 모터로 구동 시프트에 직결형이며 강력한 Power와 안전한 작동을 보장하는 오버헤드도어용 전동 오퍼레이터입니다.
추락방지장치
드럼에서 케이블 이탈을 방지하고 케이블 파손시 도어의 급격한 추락을 방지하는 2중 안전장치
Sitemap
Contact Us
회사소개
제품소개
사이버홍보실
온라인견적/커뮤니티
회사소개
회사연혁
CEO인사말
경영이념
찾아오시는길
Dock System Solution
Overhead Door System
Overhead Door
High Speed Door
Dock Leveler
Dock Seal
Dock Shelter
L-PAD Dock Shelter
Air Shelter
Compact Door
CI
인증서/특허
표창
주요시공현장
홍보자료
온라인견적
공지사항
자주하는 질문
고객센터게시판
사이트맵
사무실 :
경기 안성시 미양면 양변길 7 (우:17604)
연락처 :
031-677-5114
팩스 :
031-677-5110
이메일 :
hana@hanadoor.com / hana90@hanmail.net
Copyright @ 2014 hanadoor.com Created by
Egreef
Today Connect
701
People , Total Connect
464,936
People